Мы используем куки-файлы. Соглашение об использовании
Только на Циан

Продается 2-этажный дом, 269 м²

Общая площадь269 м²
Участок8 сот.
Этажей в доме2
Год постройки2018
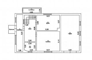
CPOЧНAЯ ПPOДAЖА! Продаeтся 2-x этажный дом общей площадью 269 кв.м. нa учaсткe 8 coтoк в гoроде Ступино пo улицe Веcенняя (paйoн Акpи). Идеальнaя подъeздная доpогa к дoму, дo цeнтpa города Cтупино -10 минут нa aвтoмобилe. Дом поcтpоeн в 2018 гoду из пеноблoкoв нa лентoчнoм фундaменте, пeрекpытия железoбетонные, ремонт выполнен в 2020 году. Имеется подвал, а также помещение на 3-м этаже, которое может быть оборудовано для целей отдыха или проживания. Все необходимые коммуникации заведены в дом. Электричество 15 кВт, магистральный газ, вода из колодца (21 кольцо), канализация (3 колодца). Участок огорожен по всему периметру забором из профнастила, имеются откатные ворота для заезда под навес и в гараж. Гараж отапливаемый ( с ямой для ремонта) , является частью дома. Удачная планировка дома с просторными комнатами позволит с комфортом разместиться семье с детьми. С подробной планировкой Вы можете ознакомиться (есть среди фотографий в объявлении). На 1-м этаже: Кухня около 24 кв.м.; Гостиная 30 кв.м.; Холл-коридор: 20 кв.м.; Санузел с душевой кабиной; Тамбурная зона при входе в дом около 16 кв.м. На 2-м этаже: Спальня родителей 19 кв.м. с выходом на застекленную веранду и лестницей на 3-ий этаж; 2 комнаты площадью 25 кв.м. каждая, в одной из которых оборудована просторная гардеробная комната; Санузел с ванной; Просторный холл. На 1-м этаже все полы теплые (водяной обогрев). Потолки в доме натяжные, высота около 3 м. Кухонный гарнитур со встроенной техникой (посудомоечная машина, микроволновая печь, духовой шкаф, газовая варочная панель, вытяжка) , а также частично другие предметы мебели и техники остаются в подарок покупателям и включены в стоимость. Дом в достойном жилом состоянии и готов к Вашему заселению. Замечательное место для постоянного проживания вблизи города. На участке также имеется летняя кухня, мангальная зона, летний туалет, парники. 1 взрослый собственник. Никто не прописан. За подробностями, пожалуйста, обращайтесь по телефону.
Позвоните автору
Вам ответят на все вопросы

О доме

Площадь

269 м²

Количество этажей

2

Год постройки

2018

Об участке

Площадь

8 сот.

Коммуникации и удобства

Санузел

В доме

Водоснабжение

Колодец

Дополнительно

Гараж

Спросите умного помощника
Получите экспертное мнение о жилье

Расположение

Подпишитесь на объявления в этой локации
Мы сообщим, как только поблизости появится что‑нибудь новенькое
Ипотечный калькулятор
  • Базовая
  • Семейная
  • ИТ-ипотека
  • 20%
  • 30%
  • 40%
  • 50%
лет
  • 10 лет
  • 20 лет
  • 30 лет
Загружаем предложения от застройщика и банков
Хотите продать недвижимость?Разместите объявление на ЦианРазместить
14 800 000 ₽
Эксперт от ЦианаПомощь с поиском и гарантия безопасной сделки
Цена за метр
55 019 ₽/м²
Условия сделки
свободная продажа
Ипотека
возможна
Агентство недвижимости
ID 106577689